CLINICA DENTAL MIGUEL MURUA
Clínica Dental
Logroño, La Rioja
Año: 2025 | Ubicación: Logroño, La Rioja (España).
Arquitecta: Esther Vicario Azcona.
Fotografía: María Azkarate.
Superficie construida: 260 m2.
Categorías: Sanitario, clínicas, accesible, construido.
.jpg)
El proyecto se concibe desde una mirada centrada completamente en el usuario, entendiendo la experiencia del paciente como eje principal del diseño arquitectónico. La propuesta reflexiona sobre los nuevos modos de habitar los espacios de salud, incorporando soluciones tipológicas que responden a los retos futuros: mayor bienestar, flexibilidad, transparencia y vínculo con el entorno urbano y natural.
.jpg)
En este contexto, el proyecto nace también como respuesta a un reto propuesto por el cliente, quien planteaba resolver el siguiente rompecabezas para el funcionamiento de su futura clínica; La propuesta debía dar solución a una serie de condicionantes muy precisos: una sala de espera abierta, conectada directamente con la recepción y sin puertas, pero a la vez protegida de la vista desde la vía pública. Asimismo, se buscaba garantizar que los pacientes en espera no pudieran ver a aquellos que abandonan la clínica tras una intervención, preservando su privacidad. A pesar de que el local permitía disponer de accesos independientes de entrada y salida, el cliente optó por concentrar ambos flujos en un único punto: la recepción.
.jpg)
La sala de espera y el recibidor se proyectan como espacios abiertos y permeables hacia la calle, diluyendo el límite entre lo público y lo privado. Esta apertura genera cercanía, accesibilidad y una relación amable con el barrio, sin perder la privacidad de los pacientes gracias a filtros visuales y transiciones espaciales. De este modo, la clínica se integra en la ciudad sin exponerse, ofreciendo una experiencia de espera más natural.
.jpg)
.jpg)
.jpg)
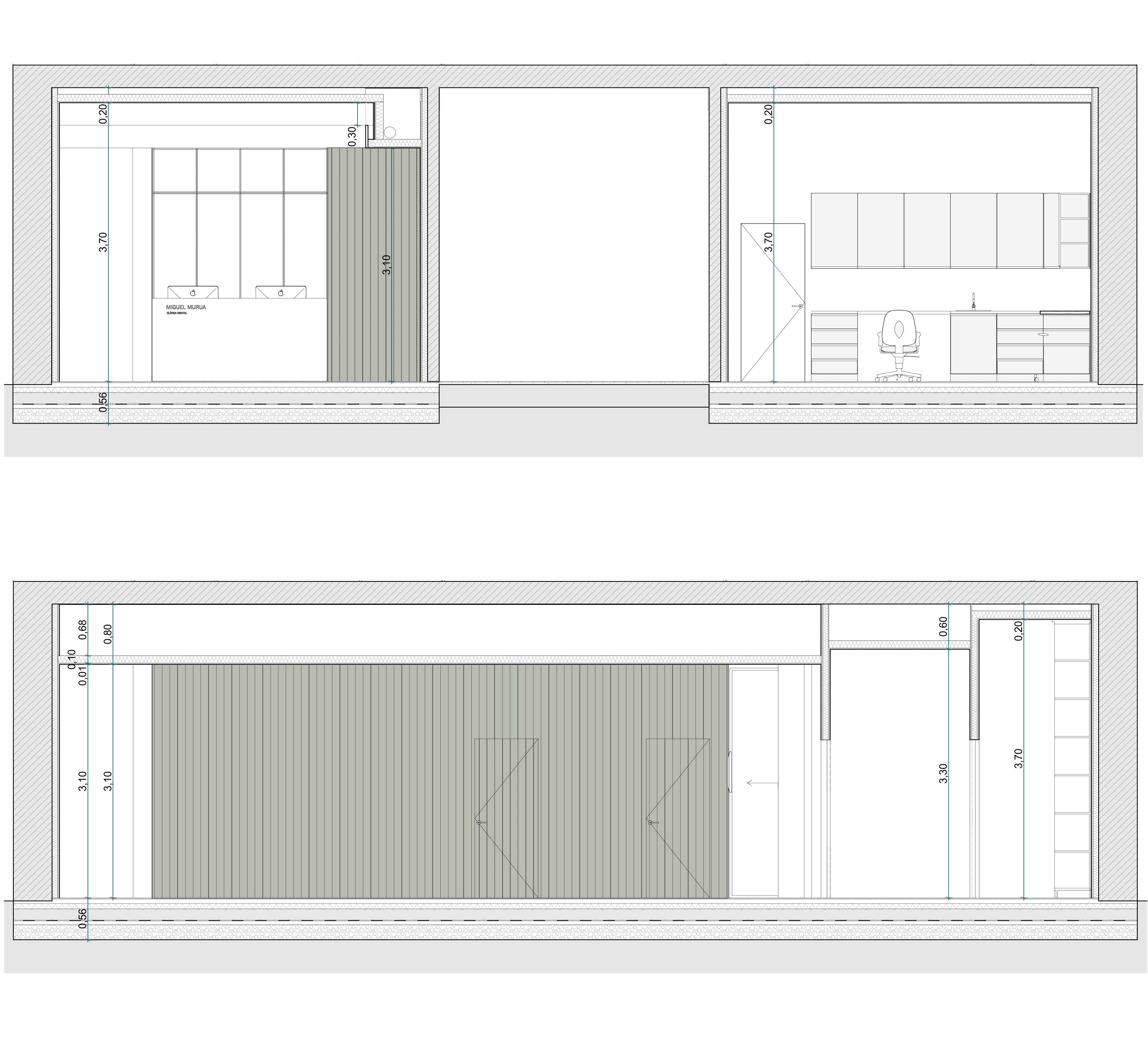
A partir de las premisas iniciales, la circulación interna se resuelve mediante una estrategia clara y ordenadora: una “rotonda” que estructura el recorrido de los pacientes de forma unidireccional, evitando cruces entre quienes ingresan, esperan o finalizan su atención. Este sistema se materializa en un gran volumen central, acabado en el color corporativo, que no solo articula espacialmente la clínica, sino que también define su funcionamiento, guiando de manera intuitiva el movimiento de los usuarios y garantizando la privacidad en todo momento. Esta organización clara y fluida mejora la comodidad, reduce el estrés y optimiza el funcionamiento del espacio.
.jpg)
.jpg)
.jpg)
.jpg)
.jpg)
.jpg)
.jpg)
.jpg)
Los gabinetes se diseñan priorizando al máximo la luz natural mediante grandes ventanales que se abren hacia un patio exterior dotado con cuidada vegetación. La presencia de vegetación actúa como fondo visual y elemento terapéutico, creando un ambiente relajado, sereno y humano, donde la arquitectura acompaña el cuidado de la salud. La relación directa con el exterior refuerza la sensación de bienestar y rompe con la imagen tradicional de los espacios clínicos cerrados.
.jpg)
.jpg)
.jpg)
.jpg)
.jpg)
.jpg)
.jpg)
Formalmente, el proyecto adopta un lenguaje contenido, basado en la pureza de las formas, la claridad espacial y el protagonismo de la luz. Así, la clínica se plantea como un espacio que no solo responde a las necesidades actuales, sino que anticipa nuevas formas de habitar los espacios de salud, poniendo al usuario, su experiencia y su bienestar en el centro del proyecto.
.jpg)
.jpg)
.jpg)
.jpg)
.jpg)
.jpg)
.jpg)
.jpg)
.jpg)
.jpg)